Wohnung Dietfurt
6,5 Zi – ALTBAUWOHNUNG, DIETFURT
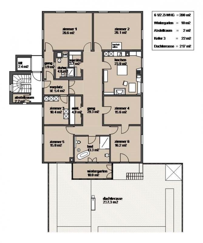
Charmant, grosszügig und sonnig: Das sind die Merkmale, die beim Betreten dieser 6.5 Zimmer-Wohnung im 2.OG (mit Lift) unmittelbar ins Auge springen.
Die Wohnung bietet viel Platz und liegt an idyllischer Lage direkt an der Thur. Die Wohnräume strahlen viel Charme aus und die offene Feuerstelle in der Küche sorgt für ein einmaliges Ambiente. Das schöne Bad ist im mediterranen Stil gehalten. Mit viel Fachkenntnissen und Liebe zum Detail wurde die ganze Liegenschaft 2014 komplett renoviert. Die Grüne Gartenterrasse mit einer Fläche von 217 m2 können Sie rund ums Jahr geniessen.
– Abstellraum
– Aussicht
– Balkon/Terrasse/Sitzplatz
– Cheminée
– Glasfaser
– Keller
– Parkplatz
– Personenlift
Bezugsbereit nach Vereinbarung!
DETAILS
CHF 1'250'000
- 158 qm
IMPRESSIONEN
















